PROJECT DETAILS - Space Available


     915 Highland Pointe

Suite 160 - 3,430 RSF
View Floorplan

View Suite Photos

Suite 200 - 7,214 RSF
View Floorplan

 


     925 Highland Pointe

Suite 100 - 5,000 RSF
View Floorplan

View Suite Photos

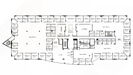
4th Floor - 31,271 RSF
View Floorplan

 



     935 Highland Pointe
        >> New Construction Coming Soon